Verkauf gegen Gebot: Dornröschenschlaf - Provisionsfrei

Verkauf gegen Gebot: Dornröschenschlaf - Provisionsfrei

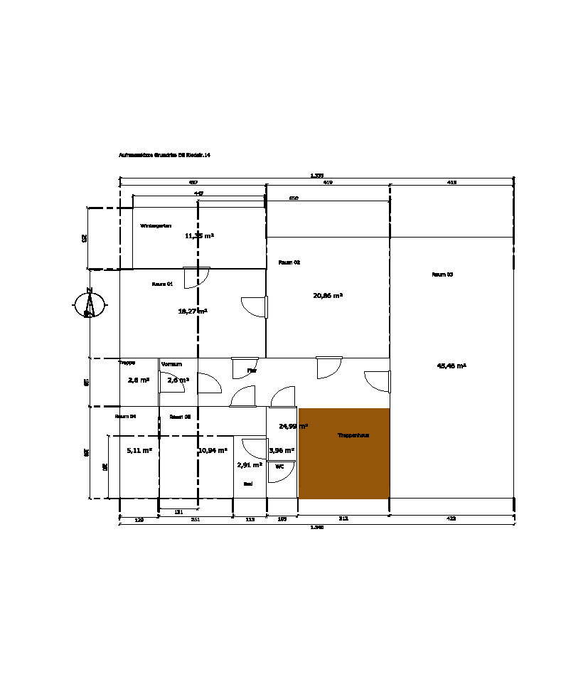
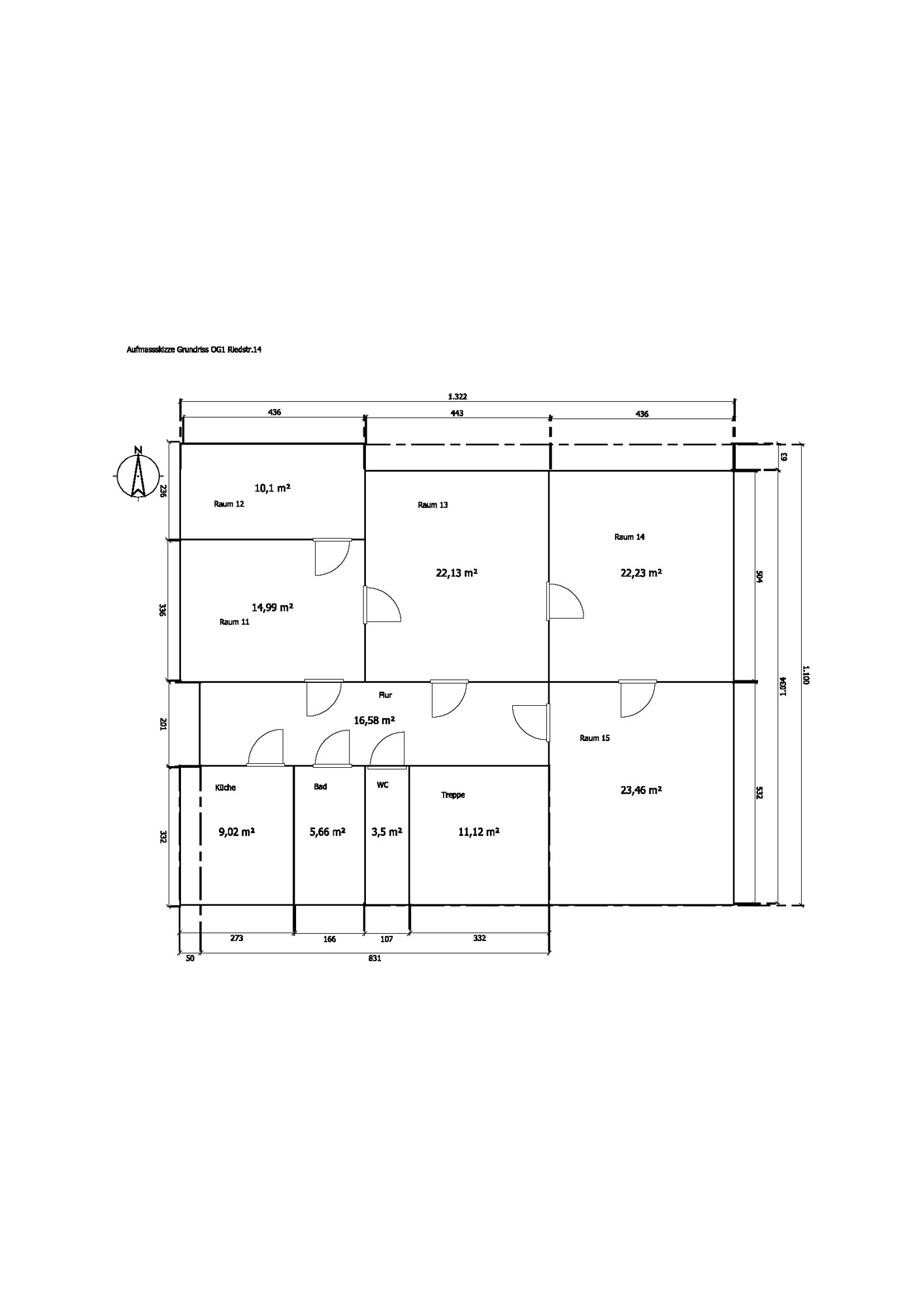
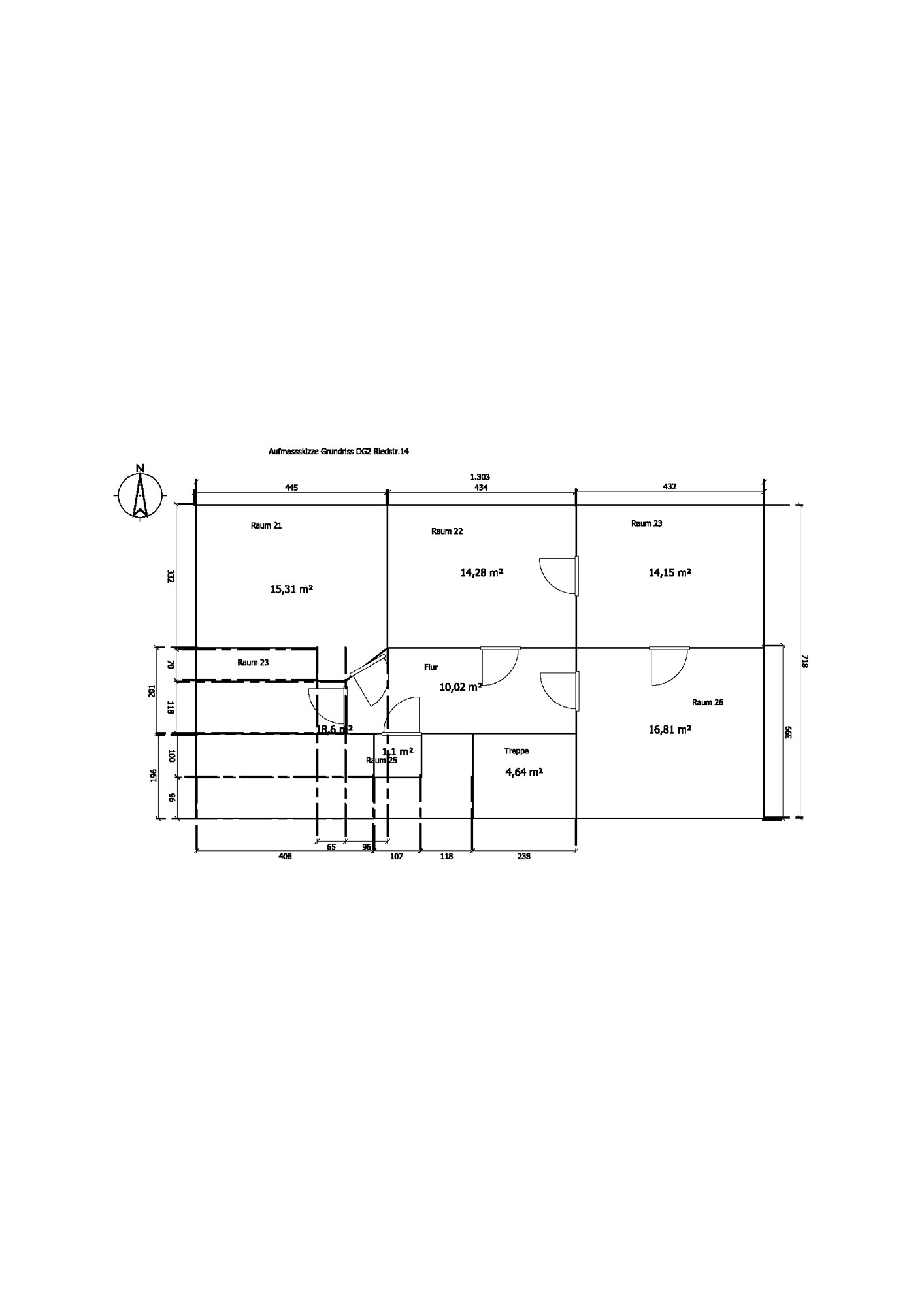
Bei dieser außergewöhnlichen, denkmalgeschützten Immobilie aus dem Jahr 1916 handelt es sich um ein dreistöckiges Einfamilienhaus im Jugendstil. Das Gebäude ist voll unterkellert. Ursprünglich enthielt das Gebäude im Erdgeschoss eine Arztpraxis. Das Objekt steht ab sofort zum Verkauf. Zwei Badezimmer und ein separates Gäste-WC zählen neben zwölf attraktiven Zimmern zu dem Haus. Das Gebäude wird per Ölöfen beheizt.

Die Ausstattung ist weitgehend ursprünglich. Zu dem Gebäude gehören mehrere Kachelöfen, ein Wintergarten und ein Gartenpavillion.

Besonderheiten:

Die Immobilie wurde etwa 20 Jahre lang nicht bewohnt. Durch einen inzwischen instandgesetzten Wasserschaden hat sich ein echter Hausschwamm gebildet. Für eine dauerhafte wirtschaftliche Nutzbarkeit sind wesentliche Sanierungs- und Modernisierungsmaßnahmen erforderlich.

Location

Nur wenige Kilometer von der Barockstadt Fulda entfernt liegt der historische Kurort Bad Salzschlirf. Die dreieinhalbtausend Einwohner zählende Gemeinde befindet sich zwischen Rhön und Vogelsberg im Tal der Schlitz. Durch die Lage im Talkessel ist das Klima hier milder als in den umliegenden Ortschaften – sogar die Apfelblüte tritt früher ein. Gleichzeitig ist es seltener schwül, da die Luft stetig weiterzieht.

Seine Beliebtheit hat Bad Salzschlirf aber nicht nur dem Klima zu verdanken. Seit 1838 wird hier Heilwasser – die Vulkansole – gewonnen und für Gesundheitsanwendungen verwendet, kombiniert mit Moorprodukten aus der Rhön. Bad Salzschlirf ist eines der ältesten Kurorte Hessens und darf sich heute „Mineral- und Moorheilbad“ nennen. Viele gekrönte Häupter und prominente Persönlichkeiten suchten in den letzten 175 Jahren nach Heilung und haben die Vulkansole genossen, gelobt und geliebt. Tausende Gäste aus ganz Deutschland besuchen Bad Salzschlirf heute jedes Jahr – ob in den drei Reha-Kliniken oder den Wellnesshotels, Gesundheitszentren und Gästehäusern der Kurgemeinde. Hier können Sie es sich bei Mineralbädern, Solebädern, Moorbädern oder Moorpackungen gutgehen lassen.

Bad Salzschlirf hat sich ein Stück heile Welt bewahrt: Das malerische Ortsbild ist geprägt von hübschen Fachwerkhäusern, romantischen Gassen, geschmackvoll restaurierten Jugendstilgebäuden und dem großen Kurpark mit seinem alten Baumbestand und üppigen Blumenarrangements. 1944 wurden hier Szenen für die berühmte „Feuerzangenbowle“ gedreht. Im Ort verteilt finden sich eine Handvoll gediegener Cafés und mediterran geprägter Restaurants. Eine Grundschule, zwei Kitas, aktive Sport- und Musikvereine, mehrere Spielplätze und ein Freibad runden das Angebot für Familien ab. Wer Sport und Natur liebt, findet direkt vor der Haustür ein dichtes Netz aus Wander-, Rad- und Inlinestrecken durch idyllische Wälder und Wiesen.

Ihr Einfamilienhaus liegt in der Riedstraße und damit im Ortskern in einem ruhigen, grünen Wohngebiet. Zum nächsten Bäcker laufen Sie weniger als eine Minute, zum Supermarkt 8 Minuten und der Bahnhof ist ca. eineinhalb Kilometer entfernt.

Other Information

WAS PASSIERT, WENN MEHRERE INTERESSENTEN KAUFEN WOLLEN

Beim Verkauf einer Immobilie ist es wichtig, schnell und effizient den richtigen Käufer zu finden. Dies führt häufig dazu, dass neben Ihnen, weitere Interessenten die Immobilie kaufen wollen. Wie geht es dann weiter? Für diesen Fall ist die Vorgehensweise klar geregelt: Sie erhalten Einblick in alle Objektunterlagen, um das Objekt noch einmal genau prüfen zu können. Anschließend können Sie für die Immobilie den Preis bieten, den Sie persönlich bereit sind zu zahlen.

Es ist jedoch häufig so, dass nicht immer das Angebot mit dem höchsten Preis den Zuschlag erhält. Vielen Eigentümern ist es wichtig, dass der neue Besitzer gut in die Nachbarschaft passt oder die Immobilie einen gepflegten Zustand zurückführt. So konnten schon viele Interessenten kaufen, obwohl es Angebote gab, die teilweise weit höher lagen.

Für Fragen hierzu, sprechen Sie uns einfach an.

Kaufpreis:
30.000 €
Objektnr.:
FD1976
Objektart:
Haus
Objekttyp:
Einfamilienhaus
Vermarktungsart:
Kauf
Baujahr:
1916
Zustand:
baufällig
Wohnfläche:
381 m²
Zimmer:
12
Badezimmer:
3
Heizungsart:
Ofenheizung
Befeuerung:
Gas
Energieausweis:
es besteht keine Pflicht!

Schnellkontakt

Ihre Vorschläge