Wo Raum zum Leben wird - ein Zuhause für Generationen

Wo Raum zum Leben wird - ein Zuhause für Generationen

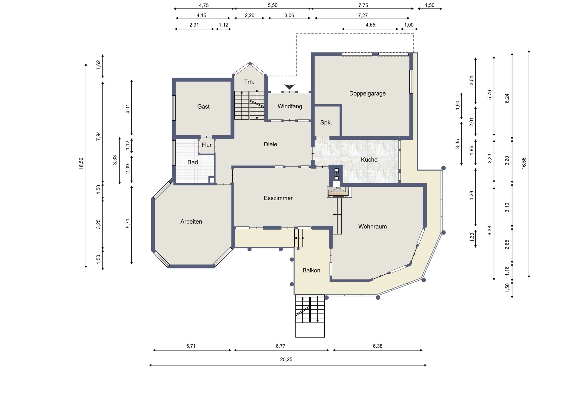
Es gibt Orte, an denen man spürt, dass sie mehr bieten als nur ein Dach über dem Kopf. Dieses exklusive Einfamilienhaus mit Einliegerwohnung in Schlüchtern gehört zweifellos dazu. Errichtet im Jahr 1981 in massiver Bauweise, entfaltet es auf rund 378 Quadratmetern Wohnfläche eine Großzügigkeit, die man heute selten findet. Elf Räume, sechs Schlafzimmer und vier Bäder – das Haus wurde für Familien entworfen, die Platz schätzen und gleichzeitig Wert auf Rückzugsorte legen.

Das Zentrum des Hauses ist das Wohnzimmer, in dem ein Kamin für Wärme sorgt, die mehr ist als nur funktional. Hier versammeln sich Menschen, hier entsteht Atmosphäre. Von dort führt der Weg hinaus auf einen Balkon, der den Garten wie eine Bühne eröffnet. Eine großzügige Terrasse im Gartengeschoss erweitert das Leben nach draußen – mit einem Ausblick, der nicht verstellt werden kann und die Landschaft zum Teil des Wohngefühls macht.

Das Grundstück ist mit rund 2.800 Quadratmetern parkähnlich angelegt: Wege, Freiflächen, Bäume – alles so dimensioniert, dass der Alltag in den Hintergrund rückt. Wer mehr will, dem eröffnet sich eine seltene Option: Direkt angrenzend steht ein weiteres Baugrundstück von etwa 2.000 Quadratmetern zur Verfügung, das zusätzlich erworben werden kann. Eine Gelegenheit, die künftigen Besitzern Freiheitsgrade lässt – sei es für ein weiteres Haus, für generationsübergreifendes Wohnen oder für ein Investment.

Auch funktional überzeugt die Immobilie. Eine voll ausgestattete Einliegerwohnung bietet Raum für Gäste, Büro oder Vermietung. Der Keller schafft Stauraum, die Hybridheizung aus Wärmepumpe und Öl sorgt für verlässliche Energieeffizienz: Während die Wärmepumpe den überwiegenden Teil des Jahres für niedrige Betriebskosten steht, übernimmt die Ölheizung zuverlässig bei Temperaturen unter null Grad Celsius.

Dieses Haus ist nicht nur ein Ort zum Wohnen. Es ist ein Stück Freiheit, ein Raum für Gestaltung – und die seltene Kombination aus Weite, Komfort und Perspektive.

Location

Schlüchtern ist eine Stadt, die auf den ersten Blick beschaulich wirkt – und die doch mitten in einem bemerkenswerten Wandel steht. Eingebettet in den sogenannten Bergwinkel, dort wo Rhön, Vogelsberg und Spessart ineinandergreifen, lebt man hier in einem Umfeld, das von klarer Luft, weitem Blick und einer besonderen Gelassenheit geprägt ist. Die Auszeichnung als Luftkurort ist kein Etikett, sondern spürbare Realität: Wälder, Höhenzüge und offene Landschaften rahmen den Ort, die Wege ins Grüne beginnen direkt vor der Haustür.

Doch Schlüchtern ruht sich nicht auf Natur und Historie aus. Die Stadt hat in den vergangenen Jahren eine Entwicklung angestoßen, die beispielhaft ist für den ländlichen Raum Hessens. Mit der „Neuen Mitte“ wurde aus einer innerstädtischen Brache ein neues Zentrum geschaffen – das Kultur- und Begegnungszentrum, kurz KuBe, bildet heute den pulsierenden Kern. Hier treffen Kultur, Vereine, Familien und Besucher aufeinander, es ist ein Ort, an dem sich die Stadtgesellschaft neu erfindet. Rundherum entstehen Geschäfte, Büros und Wohnungen, flankiert von Grünflächen, kleinen Parks und einer neu gedachten Verkehrsführung. So wird aus einer jahrzehntelangen Lücke eine Adresse, die Identität stiftet.

Die Immobilie selbst liegt in einer besonderen Position: hoch über dem Tal, mit weitem, unverstelltem Blick über Stadt und Landschaft. Diese Aussicht ist mehr als ein Versprechen – sie ist gesichert durch die Topografie und durch Freiflächen, die nicht bebaut werden können. Wer hier wohnt, schaut weit in die Ferne und weiß zugleich die Nähe zum Leben der Stadt zu schätzen.

Denn die Infrastruktur ist intakt: Schulen, Kitas, Ärzte und das Kreiskrankenhaus sind ebenso schnell erreichbar wie die Einkaufsmöglichkeiten des Mittelzentrums. Über die A 66 und die Kinzigtalbahn ist man in weniger als einer Stunde in Frankfurt oder Würzburg, Fulda liegt nur eine halbe Stunde entfernt. Für viele ist das die ideale Balance: morgens der Zug in die Metropole, abends die Rückkehr in eine Stadt, die Ruhe und Verbindlichkeit ausstrahlt.

Schlüchtern ist damit mehr als ein Zwischenraum zwischen Fulda und Frankfurt. Es ist ein Ort, der im Kleinen zeigt, wie sich eine Region neu erfinden kann – ohne ihre Ursprünge zu verleugnen. Eine Stadt, die beides bietet: den Blick in die Zukunft und den weiten Blick über das Land.

Other Information

SO GEHT ES WEITER, WENN MEHRERE INTERESSENTEN KAUFEN WOLLEN

Wenn Sie sich nach der Besichtigung für den Kauf der Immobilie interessieren, erhalten Sie automatisch Zugang zu unserer digitalen Hausakte. Dort finden Sie alle wichtigen Unterlagen, die Ihnen und Ihrem Finanzierer bei der Entscheidungsfindung helfen.

Sollten mehrere Interessenten Kaufinteresse zeigen, haben Sie die Möglichkeit, uns innerhalb einer Woche Ihre Preisvorstellung mitzuteilen. Bitte legen Sie Ihrem Angebot eine Finanzierungsbestätigung oder einen Kapitalnachweis bei, damit wir Ihre Kaufabsicht nachvollziehbar bewerten können.

Nach Ablauf der Frist erhalten Sie zeitnah eine Rückmeldung von uns, ob Sie die Immobilie erwerben können. Wir legen großen Wert auf einen fairen und transparenten Ablauf, damit Sie möglichst schnell Gewissheit haben.

Für Fragen hierzu, sprechen Sie uns einfach an.

HAFTUNGSAUSSCHLUSS

Vorvertragliche Angaben
Alle vorvertraglichen Angaben, insbesondere in Anzeigen, Exposés oder mündlichen Auskünften, basieren auf Angaben Dritter und sind unverbindlich. Sie stellen weder eine Beschaffenheitsvereinbarung noch eine Garantie dar und werden nicht Vertragsbestandteil. Eine Haftung wird nur bei vorsätzlicher oder grob fahrlässiger Falschinformation übernommen.

Informationsquelle
Alle Angaben basieren auf Informationen des Verkäufers oder Dritter und wurden von uns nicht überprüft. Wir haften nicht für deren Richtigkeit, Vollständigkeit oder Aktualität, es sei denn, wir handeln vorsätzlich oder grob fahrlässig. Interessenten sind verpflichtet, die Angaben selbst zu prüfen.

Unverbindlichkeit
Unsere Angebote sind unverbindlich. Ein Anspruch auf Abschluss eines Kauf-, Miet- oder sonstigen Vertrags besteht nicht. Änderungen, Irrtümer sowie Zwischenverkauf oder -vermietung bleiben vorbehalten.

Haftungsbegrenzung
Unsere Haftung ist auf vorsätzliches und grob fahrlässiges Verhalten beschränkt. Bei einfacher Fahrlässigkeit haften wir nur für wesentliche Vertragspflichten (Kardinalpflichten), begrenzt auf den typischerweise vorhersehbaren Schaden. Diese Haftungsbeschränkung gilt nicht bei Personenschäden, Ansprüchen nach dem Produkthaftungsgesetz oder anderen zwingenden gesetzlichen Vorschriften.

Eigenverantwortung
Der Käufer trägt die alleinige Verantwortung für die Überprüfung sämtlicher Objektangaben. Dies umfasst insbesondere Schadstoffbelastungen, Umweltgefahren, Bauschäden oder andere Mängel. Wir übernehmen keinerlei Gewähr für die Freiheit des Objekts von Belastungen oder Mängeln.

Änderungen und Irrtümer
Alle Angaben sind unverbindlich. Änderungen, Irrtümer sowie Druck- und Rechenfehler bleiben vorbehalten. Wir behalten uns vor, Angaben ohne Vorankündigung zu ändern oder zurückzuziehen.

Keine Beratung
Wir leisten keine Rechts-, Steuer- oder sonstige Fachberatung. Interessenten und Käufer sind verpflichtet, eigenständig fachliche Beratung durch geeignete Experten (z. B. Rechtsanwälte, Steuerberater oder Sachverständige) einzuholen.

Salvatorische Klausel
Sollte eine Bestimmung dieses Haftungsausschlusses unwirksam sein, bleibt die Wirksamkeit der übrigen Bestimmungen unberührt. Die unwirksame Regelung wird durch eine rechtlich zulässige Klausel ersetzt, die dem wirtschaftlichen Zweck der unwirksamen Bestimmung möglichst nahekommt.

Kaufpreis:
799.000 €
Objektnr.:
FD2428
Objektart:
Haus
Objekttyp:
Einfamilienhaus mit Einliegerwohnung
Vermarktungsart:
Kauf
Baujahr:
1981
Zustand:
Gepflegt
Wohnfläche:
378 m²
Zimmer:
11
Schlafzimmer:
6
Badezimmer:
4
Heizungsart:
Wärmepumpe
Energieausweis:
Verbrauchsausweis
Gültig bis:
09.09.2034

Schnellkontakt

Ihre Vorschläge

Immobilienbild

36396 Steinau an der Straße

Objektnr.: FD2420

Ein Haus mit Aussicht – Raum, Ruhe und Lebensqualität für die ganze Familie

Kaufpreis: 349.000 €