Doppelhaushälfte - Neubau

Doppelhaushälfte - Neubau

Der Neubau teilt sich wie folgt auf:

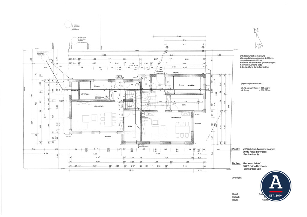
Erdgeschoss
- Wohn-Esszimmer mit Zugang zur Terrasse und Garten
- Küche mit Zugang zur Terrasse und Garten
- große Diele
- Gäste-WC
- Hauswirtschaftsraum

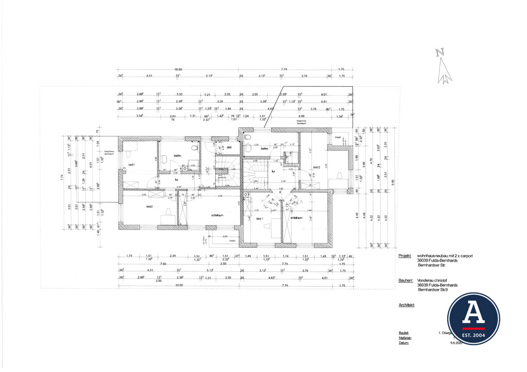
1. Obergeschoss
- Schlafzimmer
- Kinderzimmer
- Kinderzimmer
- Badezimmer mit Dusche und Wanne

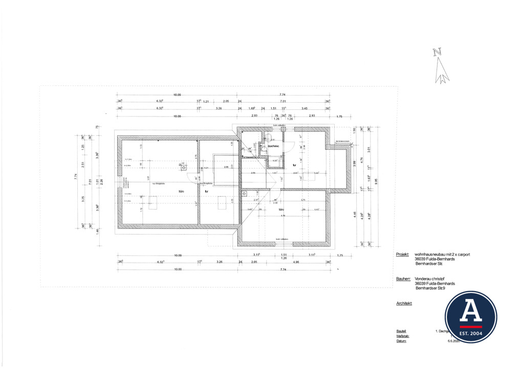
Dachgeschoss
- Arbeitszimmer

Zu dem Haus gehören zwei Stellplätze im Freien.

Energieausweis

  • A+
  • A
  • B
  • C
  • D
  • E
  • F
  • G
  • H
  • 0
  • 25
  • 50
  • 75
  • 100
  • 125
  • 150
  • 175
  • 200
  • > 225

Location

Die Doppelhaushälfte befindet sich in Fulda, Ortsteil Bernhards.

Bernhards grenzt an die Fuldaer Stadtteile Lehnerz und Dietershan, andere nahe gelegene Orte sind die Peterberger Ortsteile Steinau, Steinhaus und Marbach.
Der ländlich geprägte Stadtteil ist von landwirtschaftlichen Höfen gekennzeichnet und liegt in unmittelbarer Nähe der B27.
Fulda und Hünfeld sowie die A7 sind somit innerhalb weniger Autominuten bequem zu erreichen.

Equipment

- elektrische Rollläden
- 3-fach Verglasung
- Garten
- DSL Verfügbarkeit

Die Bodenbeläge sind Designerboden und Fliesen.

Die Tierhaltung ist nicht erwünscht.

Kaltmiete:
1.200 €
Objektnr.:
FD1909
Objektart:
Haus
Objekttyp:
Doppelhaushälfte
Vermarktungsart:
Miete
Baujahr:
2020
Zustand:
Erstbezug
Wohnfläche:
143 m²
Zimmer:
5
Badezimmer:
1
Heizungsart:
Fußbodenheizung
Befeuerung:
Luft/wasser Wärmepumpe
Energieausweis:
Bedarfsausweis
Endenergiebedarf:
18,7 kWh/(m²a)
Gültig bis:
14.02.2032
Martina Vey

Ihr Ansprechpartner

Martina Vey

Schnellkontakt

Ihre Vorschläge

Balkon

36100 Petersberg

Objektnr.: FD1734

Maisonettewohnung mit Balkon und EBK!

Kaltmiete: 750 €

1

36037 Fulda

Objektnr.: FD2429

1-A-Lage: Fuldaer Hotspot für Ihr Geschäft!

Kaltmiete: 4.400 €