Eine neue Liebe mit Fernblick Deluxé

Eine neue Liebe mit Fernblick Deluxé

Mehrfamilienhaus aus dem Jahr 1999 in Massivbauweise mit 8 Wohneinheiten und Tiefgarage.

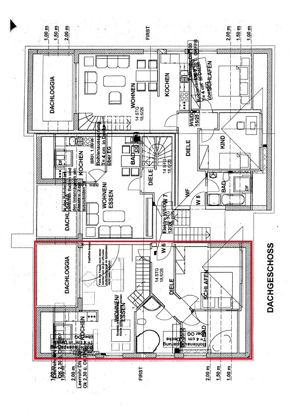
Die Wohnung teilt sich wie folgt auf:

- 1 Küche mit Einbauküche
- 1 Wohn-/Esszimmer mit Zugang zur Dachloggia
- 1 Schlafzimmer
- 1 Badezimmer mit Wanne und Dusche
- 1 Abstellraum

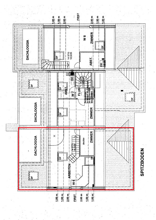
- 1 Galerie im Spitzboden
- 1 Ankleidezimmer

Zu der Wohnung gehört ein Tiefgaragenstellplatz und Stellplatz im Freien.

Location

Die Wohnung befindet sich in begehrter Lage in Petersberg, direkt unterhalb vom Rauschenberg.

Petersberg liegt ca. 3 km an der nordöstlichen Stadtgrenze von Fulda. Die Barockstadt Fulda erreichen Sie mit dem Auto in ca. 10 Fahrminuten.

Einkaufsmöglichkeiten für den täglichen Bedarf befinden sich in unmittelbarer Umgebung.

Die ca. 2 km entfernte Anschlussstelle Fulda Nord auf die A7, sowie der Anschluss an die B27 (ca. 1,5 km Entfernung) ermöglichen eine zügige Anbindung an das Fernverkehrsnetz.

Equipment

- Dachloggia
- Einbauküche (Vollholz, z.T. Miele Geräte)
- Abstellraum
- Fenster isolierverglast
- Fußbodenheizung
- Fußbodenbelag Fliesen und Echtholzparkett
- Badmöbel (lackiert)
- Einbauschränke im Schlafzimmer
- Tiefgaragenstellplatz
- Stellplatz im Freien

Other Information

WAS PASSIERT, WENN MEHRERE INTERESSENTEN DIE IMMOBILIE KAUFEN WOLLEN?

Unsere Maßnahmen beim Immobilienverkauf sind so ausgelegt, in kurzer Zeit alle potenziellen Käufer für eine Immobilie zu finden. Dabei kann es passieren, dass mehrere Interessenten die Immobilie kaufen wollen. Doch wie geht es dann weiter? In diesem Fall ist das Prozedere klar geregelt: Nach Abgabe einer schriftlichen Kaufabsichtserklärung und einer Finanzierungsbestätigung erhalten Sie Einsicht in alle Objektunterlagen.

Danach kommt es auf Ihre eigenen Erwartungen und der Intensität des Kaufwunsches an, d.h. Sie entscheiden sich für ein konkretes Angebot, das Sie zu zahlen bereit sind.

Für Fragen stehen wir jederzeit gerne zur Verfügung.

Mit unseren Aufgaben bieten wir Ihnen unsere Maklerdienste an. Bei aller Sorgfalt können wir keine Gewähr dafür übernehmen, dass alle Angebotsangaben des Grundeigentümers und/oder des Vermieters oder Vormieters richtig sind und das Objekt im Augenblick des Zuganges der Offerte noch verfügbar ist.

Kaufpreis:
298.000 €
Objektnr.:
FD1939
Objektart:
Wohnung
Objekttyp:
Etagenwohnung
Vermarktungsart:
Kauf
Baujahr:
1998
Zustand:
Gepflegt
Wohnfläche:
90 m²
Zimmer:
3
Schlafzimmer:
1
Badezimmer:
1
Etage:
2. Stock
Heizungsart:
Fußbodenheizung
Befeuerung:
Gas
Energieausweis:
Verbrauchsausweis
Gültig bis:
18.04.2028
Martina Vey

Ihr Ansprechpartner

Martina Vey

Schnellkontakt

Ihre Vorschläge

Immobilienbild

36037 Fulda

Objektnr.: FD2471

Investieren in Fuldas Topadresse

Kaufpreis: 1.450.000 €

Immobilienbild

36039 Fulda

Objektnr.: FD2476

Provisionsfrei: Moderne Spezialimmobilie mit stabiler Mieteinnahme

Kaufpreis: 795.000 €

Immobilienbild

36093 Künzell

Objektnr.: FD2504

Weitblick inklusive: Ein Zuhause über den Dächern der Stadt.

Kaufpreis: 399.000 €

Immobilienbild

36039 Fulda / Niesig

Objektnr.: FD2513

Niesiger Waldsiedlung: Viel Haus. Viel Ruhe. Viele Möglichkeiten.

Kaufpreis: 499.000 €

Immobilienbild

36039 Fulda / Aschenberg

Objektnr.: FD2518

Ankommen. Durchatmen. Bleiben.

Kaufpreis: 399.000 €