Schlüssel zum Glück: kleines Häuschen mit großem Garten

Schlüssel zum Glück: kleines Häuschen mit großem Garten

Wir freuen uns, Ihnen dieses liebevoll gepflegte Einfamilienhaus aus dem Jahr 1959 präsentieren zu dürfen, das auf einem großzügigen Grundstück von ca. 948 m² inmitten eines freundlichen Wohnumfeldes steht. Dieses besondere Zuhause bietet nicht nur einen reizvollen Charme, sondern auch eine Fülle an Möglichkeiten, um Ihr ideales Familienleben zu gestalten.

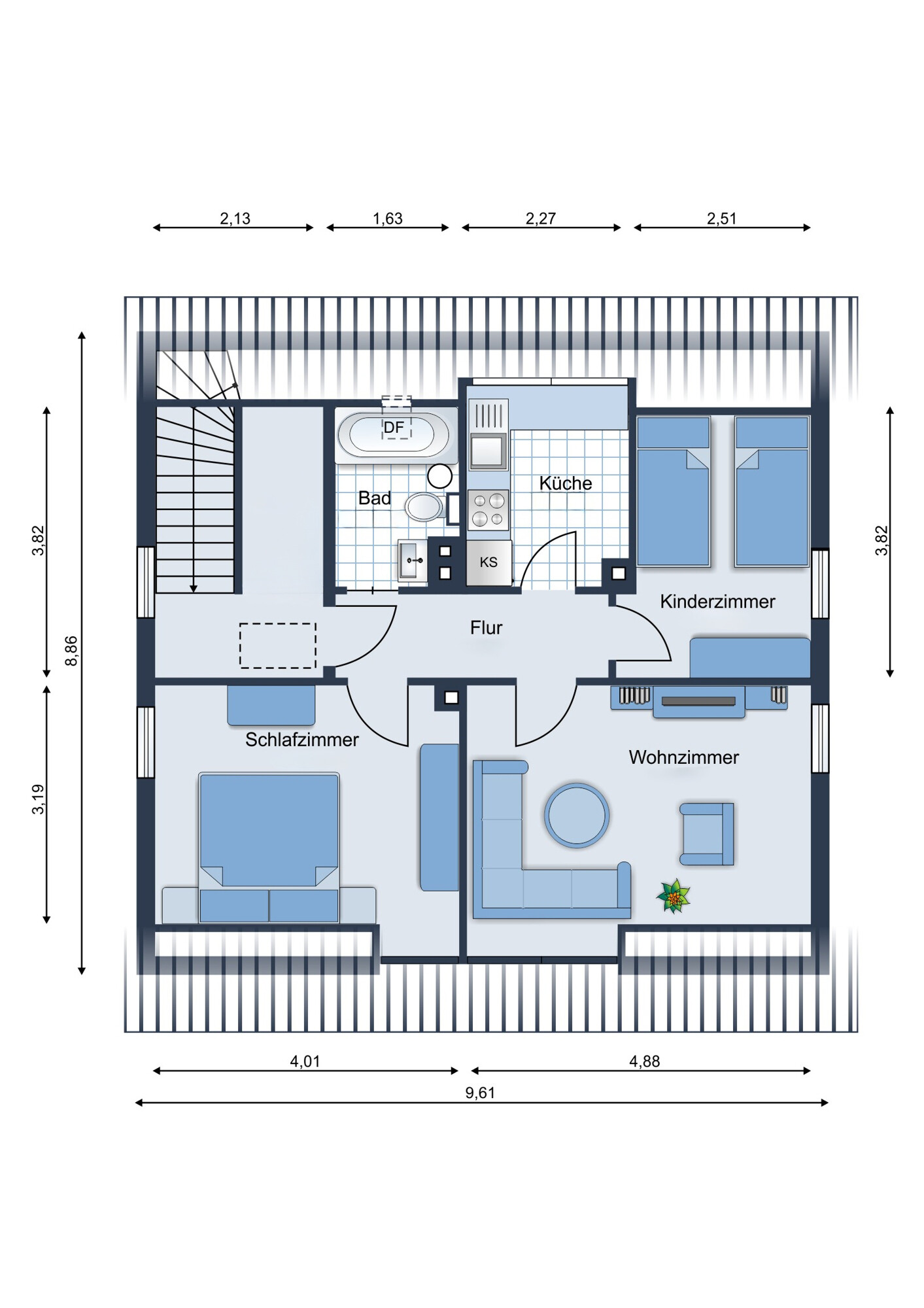
Das voll unterkellerte Haus verteilt sich auf zwei Ebenen mit insgesamt etwa 110 m² Wohnfläche. Im Erdgeschoss erwarten Sie ca. 59 m², bestehend aus einem einladenden Flur, einem gemütlichen Schlafzimmer, einem lichtdurchfluteten Wohn-/Esszimmer, einer funktionalen Küche mit Einbauküche sowie einem modernen Bad. Das Dachgeschoss bietet weitere ca. 51 m² Wohnfläche, die sich auf ein zusätzliches Schlafzimmer, ein Wohnzimmer, ein Esszimmer, eine Küche und ein Bad aufteilen.

Im Keller befindet sich zusätzlich ein praktisches Duschbad mit Toilette.

Das Grundstück ist eine wahre Oase: Neben einer Vielzahl an Obstbäumen finden Sie hier einen brachliegenden Nutzgarten, der nur darauf wartet, wieder in ein blühendes Paradies verwandelt zu werden. Der Außenbereich wird durch ein Nebengebäude mit Garage und Werkstatt sowie einen überdachten Unterstand im hinteren Bereich abgerundet, der das Potenzial bietet, in eine gemütliche überdachte Terrasse umgewandelt zu werden – perfekt für entspannte Stunden im Freien.

Das Haus befindet sich in einem gepflegten Zustand. Es ist ideal für kleine Familien, die auf der Suche nach einem Zuhause mit Charakter und der Möglichkeit sind, ihren eigenen Traumgarten zu gestalten. Entdecken Sie die Ruhe und Gemütlichkeit dieses einzigartigen Zuhauses, das als perfekter Rückzugsort dient und gleichzeitig Raum für Ihre persönliche Entfaltung bietet.

Dank regelmäßiger Wartung und Pflege befindet sich das Haus in einem guten Zustand, sodass aktuell kein dringender Reparaturbedarf besteht. In den letzten drei bis dreieinhalb Jahrzehnten wurden ausgewählte Instandhaltungsarbeiten durchgeführt, um den Wohnkomfort zu erhöhen und die Langlebigkeit des Hauses zu sichern:

- Im Jahr 1988 erhielt das Dach eine neue Eindeckung, ergänzt durch eine moderate Wärmedämmung in bestimmten Bereichen.
- 1996 wurden moderne Kunststofffenster mit Zweischeiben-Wärmeschutzverglasung eingebaut, was zur Energieeffizienz des Hauses beiträgt.
- Die Bäder bekamen um 1996 bzw. um das Jahr 2000 neue Fliesen, was sie bis heute zeitgemäß und ansprechend erscheinen lässt.
- Circa 2006 wurde eine Gasbrennwertheizung installiert, die für eine effiziente und umweltschonende Wärmeversorgung sorgt.

Bei unserem Besuch fielen uns im Kellerbereich, insbesondere im erdberührten Sockelbereich, kleinere Putzabplatzungen auf. Diese sind jedoch typisch für Häuser des entsprechenden Alters und stellen keine ungewöhnliche Begebenheit dar. Erfreulicherweise wurden bereits in den Jahren 2013 und 2014 umfangreiche Maßnahmen zur Abdichtung der Kelleraußenwände an zwei Seiten des Gebäudes erfolgreich umgesetzt.

Wir laden Sie herzlich ein, sich selbst von diesem Objekt zu überzeugen und vielleicht schon bald die Tür zu Ihrem neuen Zuhause aufzuschließen.

Energieausweis

  • A+
  • A
  • B
  • C
  • D
  • E
  • F
  • G
  • H
  • 0
  • 25
  • 50
  • 75
  • 100
  • 125
  • 150
  • 175
  • 200
  • > 225

Location

Götzenhof, ein Ortsteil von Petersberg, zeichnet sich durch seine praktische Lage aus, die ideal für diejenigen ist, die die Nähe zur Natur schätzen und gleichzeitig Wert auf eine gute Verkehrsanbindungen legen. Dieser Ort vereint das Beste aus beiden Welten: eine dörfliche Struktur und die schnelle Erreichbarkeit von umliegenden Städten und Ortschaften.

Götzenhof bietet zahlreiche Freizeitmöglichkeiten wie Wanderwege und Radstrecken, was die hohe Lebensqualität dort unterstreicht.

Die gute Anbindung an das Verkehrsnetz und die Nähe zu Fulda erleichtern den Alltag und die berufliche Mobilität, ohne dass die Bewohner auf die Vorzüge des Landlebens verzichten müssen. Kulturelle und historische Stätten bereichern das kulturelle Erbe und tragen zur Identität dieser Gegend bei. Götzenhof ist somit ein attraktiver Wohnort für diejenigen, die eine ausgewogene Mischung aus ländlicher Idylle, guter Erreichbarkeit und einer lebendigen Gemeinschaft suchen.

Other Information

WAS PASSIERT, WENN MEHRERE INTERESSENTEN KAUFEN WOLLEN

Beim Verkauf einer Immobilie ist es wichtig, schnell und effizient den richtigen Käufer zu finden. Dies führt häufig dazu, dass neben Ihnen, weitere Interessenten die Immobilie kaufen wollen. Wie geht es dann weiter? Für diesen Fall ist die Vorgehensweise klar geregelt: Sie erhalten Einblick in alle Objektunterlagen, um das Objekt noch einmal genau prüfen zu können. Anschließend nennen Sie uns den Preis, den Sie persönlich für die Immobilie zu zahlen bereit sind. Bitte beachten Sie, dass wir hierfür eine aktuelle Finanzierungsbestätigung oder einen entsprechenden Kapitalnachweis benötigen. Falls Ihnen diese Unterlagen noch nicht vorliegen, setzten Sie sich bitte rechtzeitig mit Ihrer Bank oder Ihrem Finanzierer in Verbindung.

Für Fragen hierzu, sprechen Sie uns einfach an.

Kaufpreis:
239.000 €
Objektnr.:
FD2089
Objektart:
Haus
Objekttyp:
Einfamilienhaus
Vermarktungsart:
Kauf
Baujahr:
1959
Zustand:
Gepflegt
Wohnfläche:
110 m²
Zimmer:
5
Schlafzimmer:
3
Badezimmer:
2
Heizungsart:
Zentralheizung
Befeuerung:
Gas
Energieausweis:
Bedarfsausweis
Endenergiebedarf:
312,7 kWh/(m²a)
Gültig bis:
13.09.2033

Schnellkontakt

Ihre Vorschläge

Immobilienbild

36037 Fulda

Objektnr.: FD2471

Investieren in Fuldas Topadresse

Kaufpreis: 1.450.000 €

Immobilienbild

36039 Fulda

Objektnr.: FD2476

Provisionsfrei: Moderne Spezialimmobilie mit stabiler Mieteinnahme

Kaufpreis: 795.000 €

Immobilienbild

36093 Künzell

Objektnr.: FD2504

Weitblick inklusive: Ein Zuhause über den Dächern der Stadt.

Kaufpreis: 399.000 €

Immobilienbild

36039 Fulda / Niesig

Objektnr.: FD2513

Niesiger Waldsiedlung: Viel Haus. Viel Ruhe. Viele Möglichkeiten.

Kaufpreis: 499.000 €

Immobilienbild

36039 Fulda / Aschenberg

Objektnr.: FD2518

Ankommen. Durchatmen. Bleiben.

Kaufpreis: 399.000 €